Nieuw in verkoop:2e Kekerstraat 29, 1104 VB Amsterdam - Foto
Nieuw in verkoop
+62

2e Kekerstraat 29 1104 VB Amsterdam € 650.000,- k.k.

  • 5 kamers
  • 4 slaapkamers
  • 1 badkamers
  • Bouwjaar 2007
  • 118 m² perceeloppervlakte
  • 128 m² gebruiksoppervlakte
  • Gemeubileerd
  • A Energielabel A

Beschrijving

UNIEKE KANS | VOLLEDIG INSTAPKLAAR | LUXE & VEILIG WONEN 2e Kwekerstraat 29 – 1104 VB Amsterdam

Wie zoekt naar comfort, luxe én zekerheid, vindt hier een woning die zich duidelijk onderscheidt van alles wat momenteel op de markt is. Aan de rustige 2e Kwekerstraat 29 in Amsterdam-Zuidoost staat deze moderne eengezinswoning (bouwjaar 2007) met 128 m² woonoppervlak, verdeeld over drie volwaardige woonlagen, een ruime tuin met achterom, nieuwe schuttingen en een vrijstaande berging.

Wat deze woning écht uniek maakt: zij wordt verkocht inclusief complete inboedel én volledig beveiligingssysteem. In een markt waarin opnieuw kopen en inrichten duizenden euro’s extra kost, is dit een uitzonderlijke en slimme investering.

Zelfs de Erfpacht is EEUWIGDUREND afgekocht.


Indeling – ruimte, logica en comfort

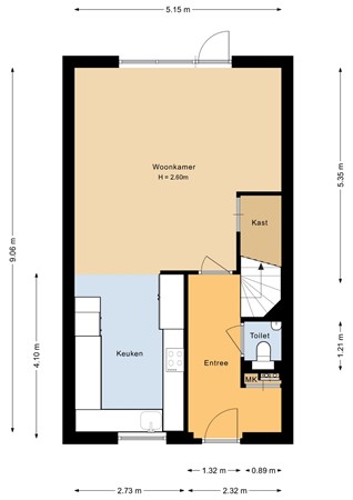
Begane grond
Entree, hal met meterkast, luxe toilet, lichte en ruime woonkamer met directe toegang tot de tuin en een luxe keuken (2025) aan de voorzijde, uitgevoerd met alle denkbare inbouwapparatuur.

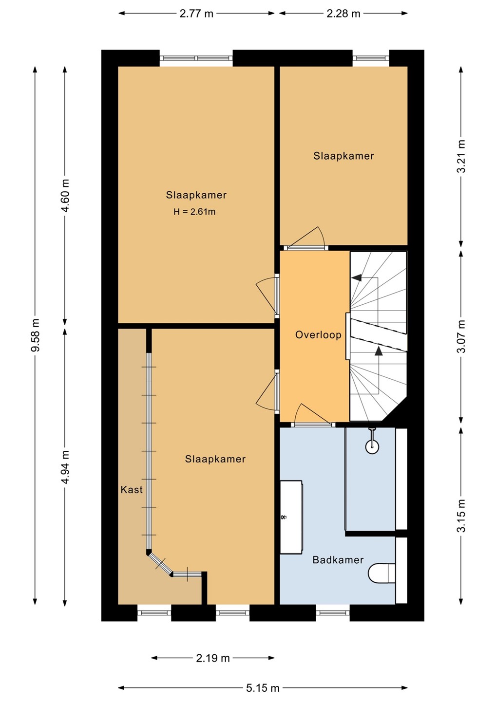
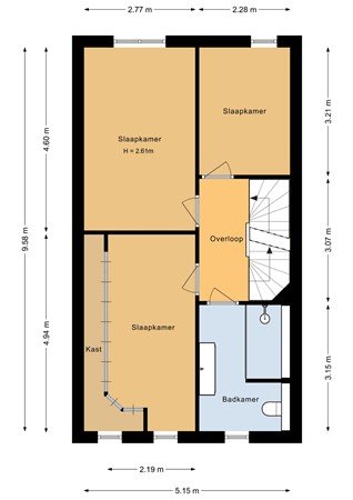
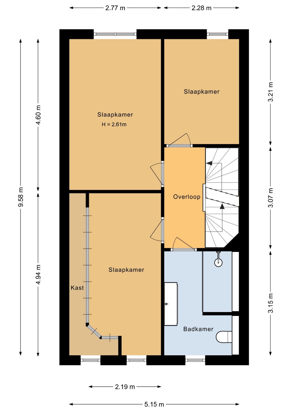
Eerste woonlaag
Overloop met toegang tot drie volwaardige slaapkamers en een nieuwe luxe badkamer (2025) met ruime douche, modern badmeubel en toilet.
Tweede woonlaag

Ruime vierde slaapkamer – ideaal als master bedroom, werkruimte of privéverdieping.

• Alle verdiepingen voorzien van airconditioning.
• Alle binnendeuren zijn hoge stompe deuren, zonder bovenlicht.
• Gehele woning is met CAT 6 bekabeld (internet).

Luxe keuken & badkamer (beide 2025)

De in 2025 vernieuwde keuken is een echte eyecatcher en voorzien van:
• Inductiekookplaat
• Amerikaanse koelkast
• Vaatwasser
• Combi-magnetron
• Le mans kast

Ook de badkamer (2025) is modern en hoogwaardig afgewerkt:
• Ruime inloopdouche
• Stijlvol badmeubel
• Toilet

Alles is nieuw, fris en toekomstbestendig.

Volledig gemeubileerd – directe waarde

De woning wordt opgeleverd met een complete en hoogwaardige inboedel, waaronder:
• Bedden en kasten
• Bankstel, eettafel en stoelen
• Meerdere tv’s en bureaus
• Fitnessapparatuur
• Nieuwe Samsung wasmachine
• Samsung droger
• Rolluiken voor en achter( voorkant ingebouwd)
• Kasten zijn op maat gemaakt.
• Raambekleding voorzien van Shutters

Dit betekent: geen extra investeringen, geen wachttijden, geen stress. Alleen je koffer meenemen en wonen.

Master bedroom met hotel-allure:

Een zeldzame luxe in deze prijsklasse:
• Romantische haard op de ouderslaapkamer
• Eigen pantry met koelkast

Perfect voor rustige avonden, quality time of een film kijken vanuit bed met de haard aan. Een privéplek die aanvoelt als een luxe hotelsuite.

Volledig beveiligd wonen

De woning is uitgerust met een professioneel alarmsysteem en camera’s, volledig geïntegreerd in de inboedel.
Deze worden in overleg geprogrammeerd en overgezet naar de nieuwe eigenaar. Veiligheid, rust en controle – zonder extra kosten.

De woning is ook voorzien van rolluiken op de bovenste verdieping.

Buitenruimte

De ruime achtertuin biedt privacy en comfort, beschikt over:
• Nieuwe schuttingen
• Achterom
• Vrijstaande berging

Ideaal voor fietsen, opslag of hobby’s en perfect om te ontspannen na een drukke dag.

Leven in Amsterdam-Zuidoost – alles binnen handbereik

De ligging is praktisch én levendig:
• Winkelcentra: Amsterdamse Poort en lokale winkels
• Openbaar vervoer: metro, bus en trein (Bijlmer ArenA & Holendrecht)
• Uitvalswegen: snelle aansluiting op A2, A9 en A10
• Scholen & kinderopvang: ruim aanbod in de directe omgeving
• Sport & ontspanning: sportscholen, recreatie en sportvelden
• Groen: Nelson Mandelapark, Gaasperpark en Gaasperplas
• Entertainment: Johan Cruijff ArenA, Ziggo Dome & AFAS Live

Voor wie is dit een buitenkans?

• Expats die volledig ingericht en veilig willen wonen
• Gescheiden kopers die zonder gedoe een nieuwe start zoeken
• Starters die geen extra kosten willen maken
• Tweede-woningkopers die luxe en gemak in Amsterdam zoeken

Waarom € 655.000,- een unieke kans is

• Complete inboedel inbegrepen
• Luxe keuken & badkamer uit 2025
• Beveiliging met alarm en camera’s
• Geen verbouw- of inrichtingskosten
• Direct beschikbaar en instapklaar

Opnieuw kopen, verbouwen en inrichten is vandaag de dag aanzienlijk duurder.
Deze woning biedt alles in één – slim, comfortabel en waardevast.

Maak snel een afspraak voor een bezichtiging en ervaar zelf hoe uitzonderlijk compleet en aantrekkelijk deze woning is.
2e Kwekerstraat 29 – wonen zonder concessies.

Kaart

Kenmerken

Overdracht

Referentienummer
05177
Vraagprijs
€ 650.000,- k.k.
Inrichting
Ja
Inrichting
Gemeubileerd
Status
Nieuw in verkoop
Aanvaarding
In overleg
Aangeboden sinds
Woensdag 4 februari 2026

Bouw

Type object
Woonhuis, eengezinswoning, tussenwoning
Soort bouw
Bestaande bouw
Bouwperiode
2007
Dakbedekking
Bitumen
Type dak
Platdak
Keurmerken
Beveiliging
Isolatievormen
Dakisolatie
Driedubbel glas
Dubbel glas
Spouwmuren
Vloerisolatie
Volledig geïsoleerd

Oppervlaktes en inhoud

Perceeloppervlakte
118 m²
Woonoppervlakte
128 m²
Inhoud
430 m³
Oppervlakte externe bergruimte
6 m²

Indeling

Aantal bouwlagen
3
Aantal kamers
5 (waarvan 4 slaapkamers)
Aantal badkamers
1 (en 1 apart toilet)

Tuin

Type
Achtertuin
Hoofdtuin
Ja
Oriëntering
Oosten
Heeft een achterom
Ja

Energieverbruik

Energielabel
A

CV ketel

CV ketel
Combi
Warmtebron
Gas
Bouwjaar
2010

Uitrusting

Verwarmingssysteem
Airconditioning
Centrale verwarming
Ventilatie methode
Mechanische ventilatie
Keukenvoorzieningen
Inbouwapparatuur
Badkamervoorzieningen
Inloopdouche
Toilet
Vloerverwarming
Wastafelmeubel
Heeft airco
Ja
Heeft een alarm
Ja
Glasvezelaansluiting aanwezig
Ja
Tuin aanwezig
Ja
Heeft domotica
Ja
Beschikt over een internetverbinding
Ja
Heeft rolluiken
Ja
Heeft zonwering
Ja
Heeft ventilatie
Ja

Kadastrale gegevens

Kadastrale aanduiding
Weesperkarspel L 9747
Perceeloppervlakte
118 m²
Eigendomsituatie
Erfpacht